fbpx
Le panier est vide
Le panier est vide

Verrière aluminium certifiée QUALICOAT

Label assurant un niveau de thermolaquage de qualité maximum de nos verrières


Vidéos de montage de nos verrières en kit

Besoin d'aide avec l'assemblage de votre verrière en kit ? Notre opérateur vous montre comment fabriquer votre verrière d'atelier. La procédure est la même pour les verrières standard et sur-mesure.

Verrière Grands Carreaux

Verrière avec Imposte

Verrière Destructurée


Notices de montage des verrières standards

Verrière standard 2 verres
Verrière standard 2 verres mixtes (avec traverse)
Verrière d'Artiste 2 verres
Verrière standard 3 verres
Verrière standard 3 verres mixtes (avec traverse)
Verrière d'Artiste 3 verres
Verrière Loft 3 sections
Verrière standard 4 verres
Verrière standard 4 verres mixtes (avec traverse)
Verrière d'Artiste 4 verres
Verrière Loft 4 sections
Verrière standard 5 verres
Verrière standard 5 verres mixtes (avec traverse)
Verrière d'Artiste 5 verres
Verrière Loft 5 sections
Verrière standard 6 verres
Verrière standard 6 verres mixtes (avec traverse)
Verrière d'Artiste 6 verres
Verrière Art Déco 1500 x 1250
Verrière Art Déco 1500 x 1500
Verrière Art Déco 1700 x 1250
Verrière Art Déco 1700 x 1500
Verrière Art Déco 1900 x 1250
Verrière Art Déco 1900 x 1500
Verrière Art Déco 2100 x 1250
Verrière Art Déco 2100 x 1500
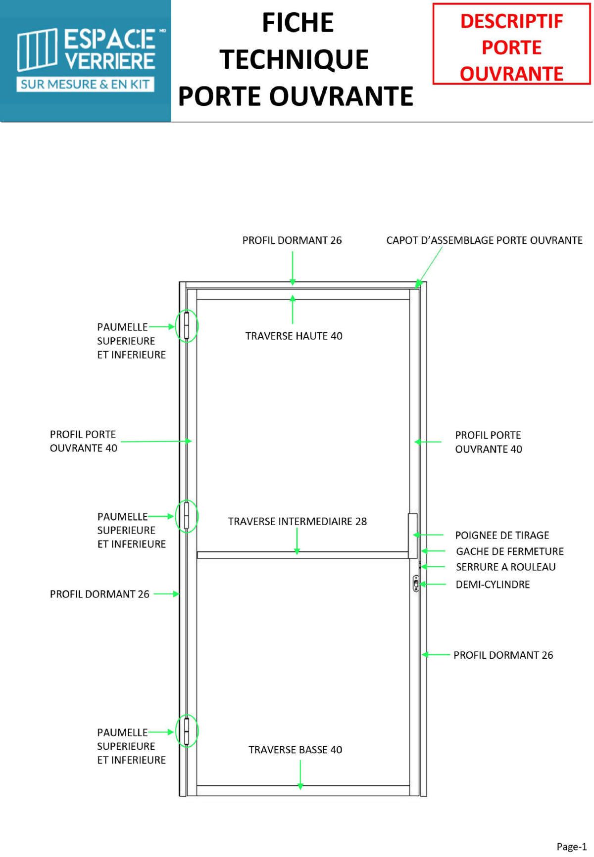
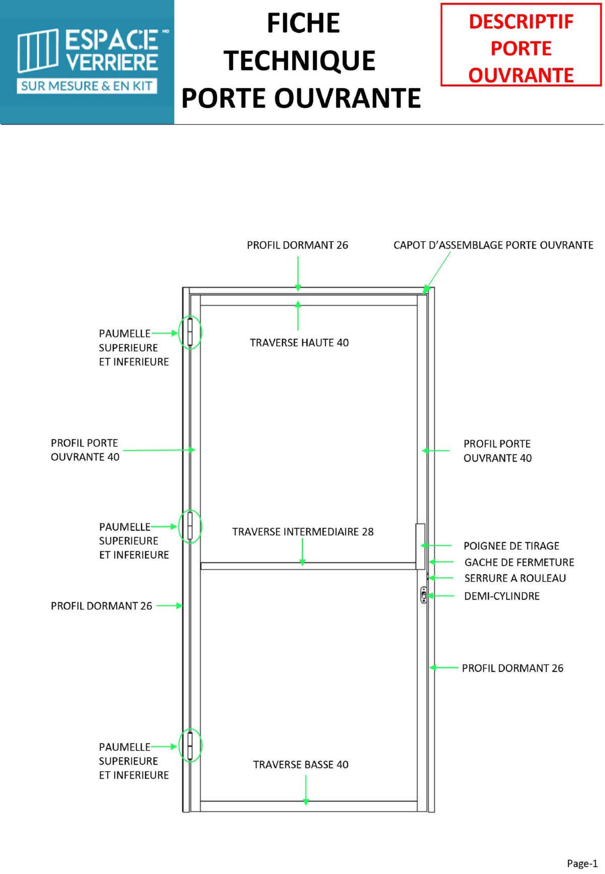
Sections des profils et accessoires

Notices de montage des verrières sur mesure

Verrière grand carreaux sur mesure
Verrière mixtes sur mesure (avec traverse)
Verrière petits carreaux sur mesure
Verrière sur mesure d'angle
Verrière sur mesure d'angle avec traverse
Verrière sur mesure avec soubassement bois
Verrière sur mesure avec soubassement tôle
Sections des profils et accessoires